Este proyecto de reforma integral se desarrolla en el corazón de uno de los barrios más exclusivos de Madrid, donde la vivienda existente se reinterpreta por completo para adaptarse a las necesidades y estilo de vida de sus nuevos propietarios, que requieren un programa amplio, funcional y altamente personalizado. Desde el inicio, el diseño de interior se convierte en la máxima prioridad, buscando un equilibrio entre un estilo clásico que evoca la elegancia atemporal y toques modernos que aportan frescura, comodidad y sofisticación.
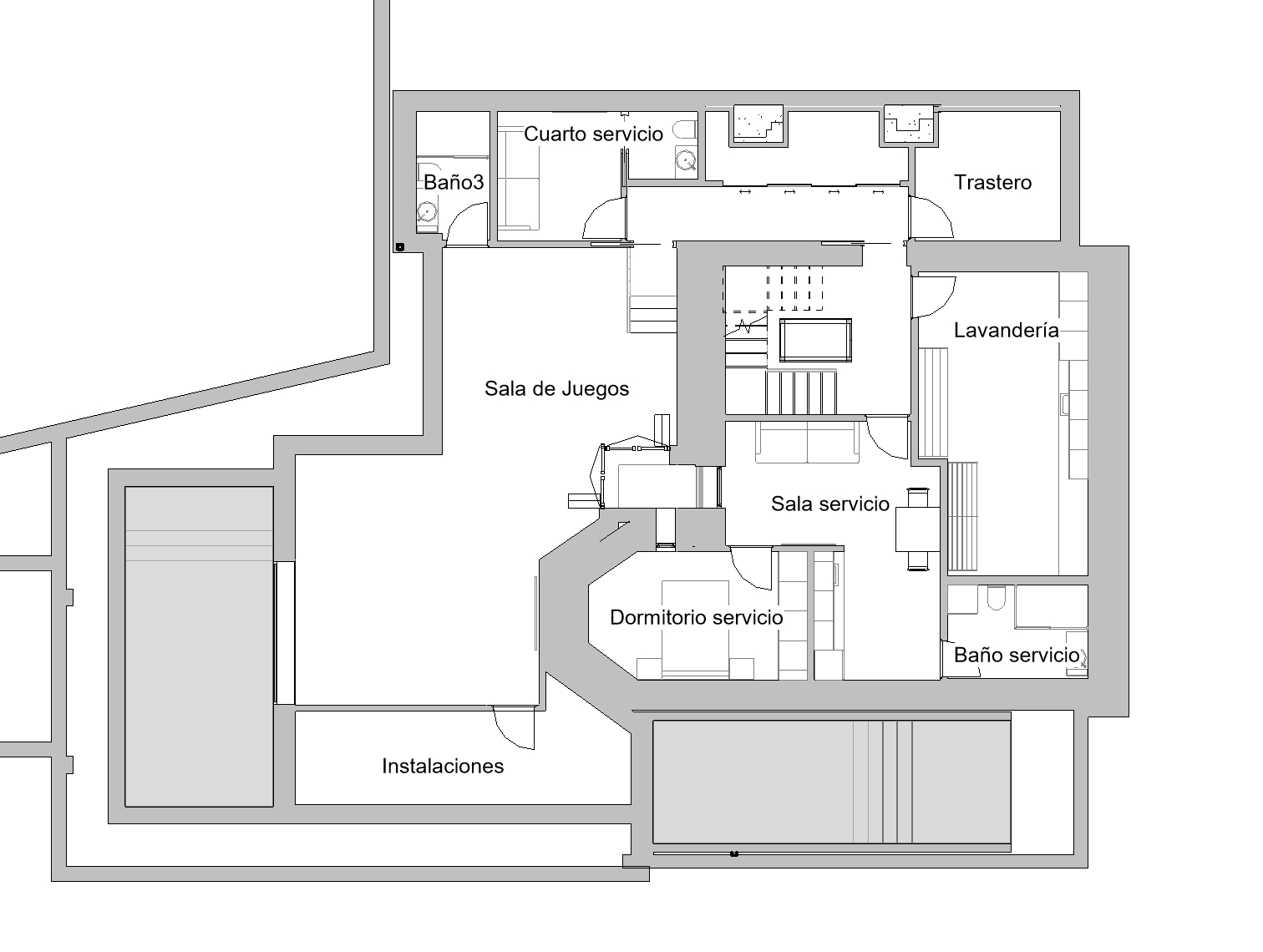
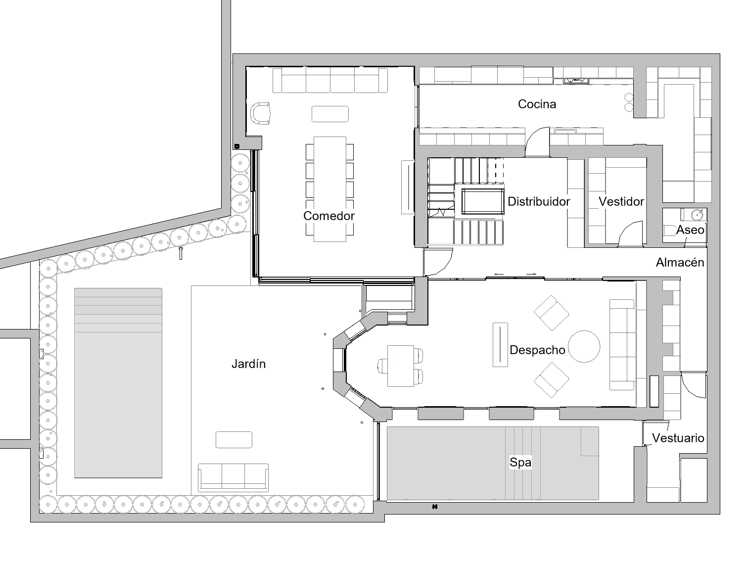
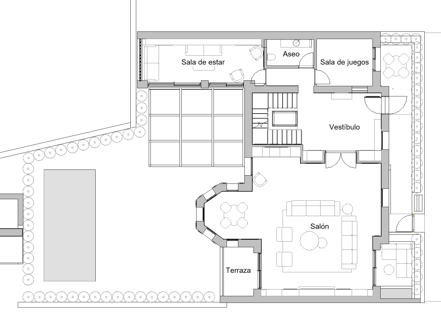
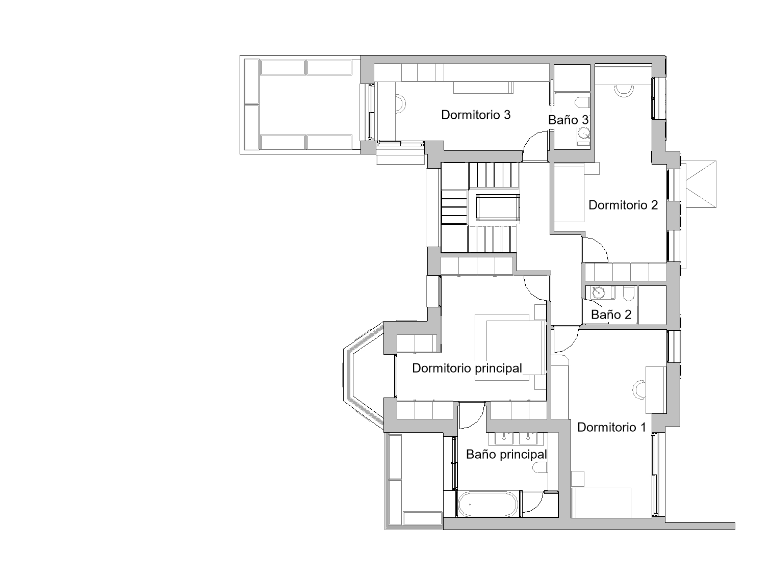
La vivienda se organiza en varios niveles, y el programa se adapta cuidadosamente a esta configuración. En la parte superior se sitúan los espacios de noche, más privados y tranquilos. A medida que se desciende, aparecen los espacios de día, los ámbitos de trabajo, las zonas de ocio y finalmente las áreas de servicio, generando una secuencia lógica y fluida que acompaña el ritmo cotidiano de quienes la habitan.
El resultado es una residencia exclusiva que combina tradición y modernidad, donde la arquitectura interior se alinea con la vida de sus propietarios, creando un hogar sofisticado, funcional y lleno de carácter.









