Saltar al contenido

VILLA ORTEMBACH

Este proyecto de vivienda unifamiliar en Calpe representa la esencia del lujo contemporáneo a través de líneas arquitectónicas simples, elegantes y atemporales. Concebida para integrarse con el paisaje mediterráneo, la vivienda se orienta estratégicamente para capturar las máximas vistas hacia el mar y el entorno natural que la rodea.

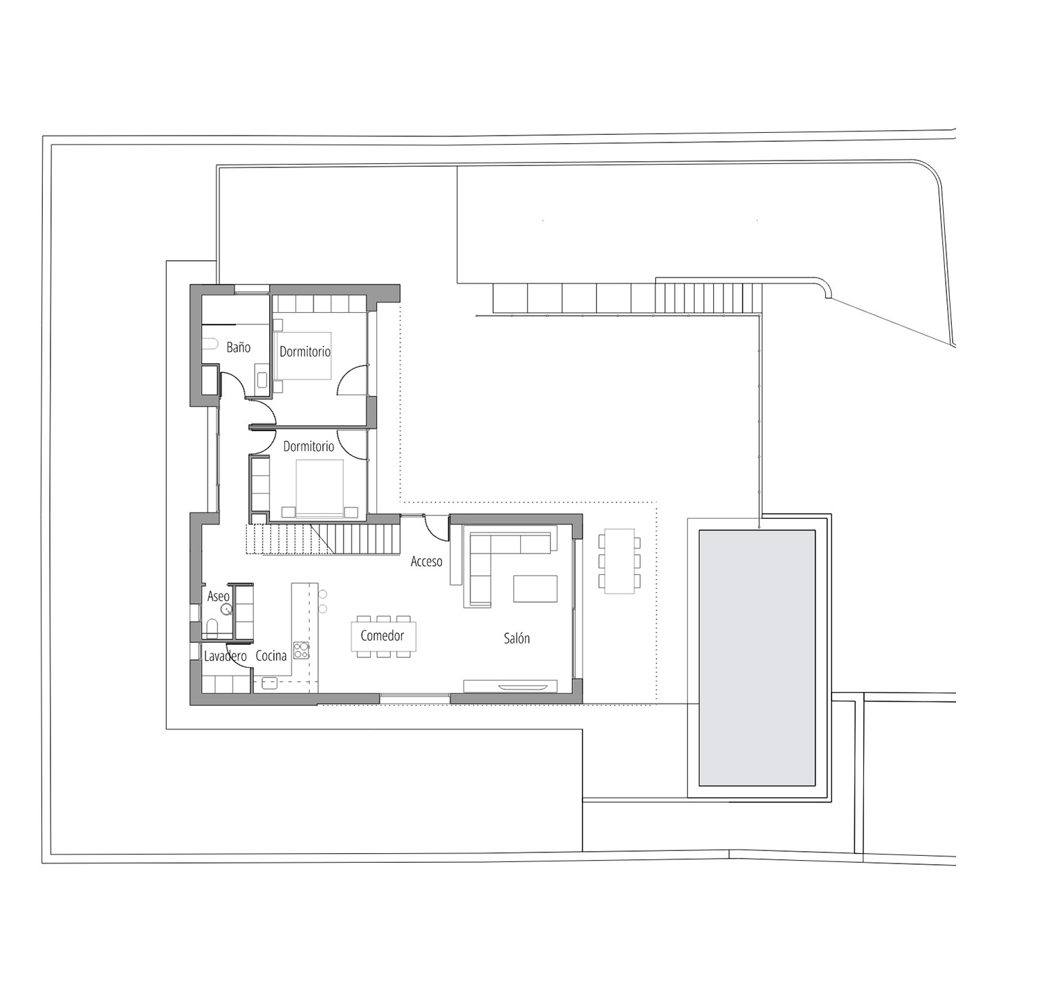
La distribución interior se organiza en torno a la luz y la amplitud: la zona de día se compone de un salón–comedor de planta abierta que se fusiona con una cocina de diseño, creando un espacio continuo y funcional. Bajo la escalera se integra una vinoteca personalizada, convirtiéndose en un elemento protagonista que combina estética y utilidad.

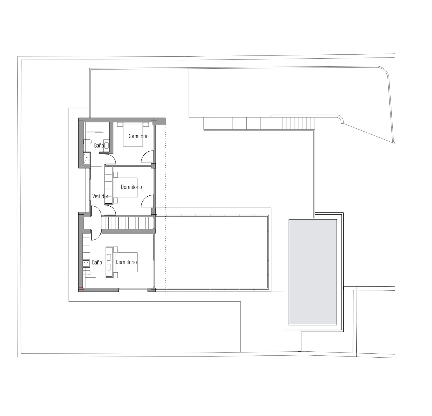
La vivienda cuenta con 5 dormitorios cuidadosamente diseñados y 3 baños, ofreciendo confort y privacidad a todos sus usuarios. Cada estancia ha sido estudiada para potenciar la sensación de serenidad, reforzada por materiales nobles, tonos neutros y una conexión constante con el exterior.

El resultado es una residencia que combina minimalismo, calidez y sofisticación, concebida para disfrutar del entorno privilegiado de Calpe con la máxima calidad arquitectónica.