La vivienda se emplaza en un entorno privilegiado, ideal para quienes buscan tranquilidad y una fuerte conexión con el paisaje. Las vistas abiertas al Peñón de Ifach convierten la parcela en un escenario excepcional, que guía la orientación y la configuración de todo el proyecto.
El diseño se concibe con una marcada vocación hacia las vistas, mientras que se protege de las parcelas colindantes para crear un exterior completamente íntimo. Amplios voladizos generan áreas de sombra bien definidas, que enmarcan el horizonte y aportan una estética dinámica y precisa, en consonancia con la sensibilidad del propietario por el diseño limpio, técnico y de alto rendimiento.
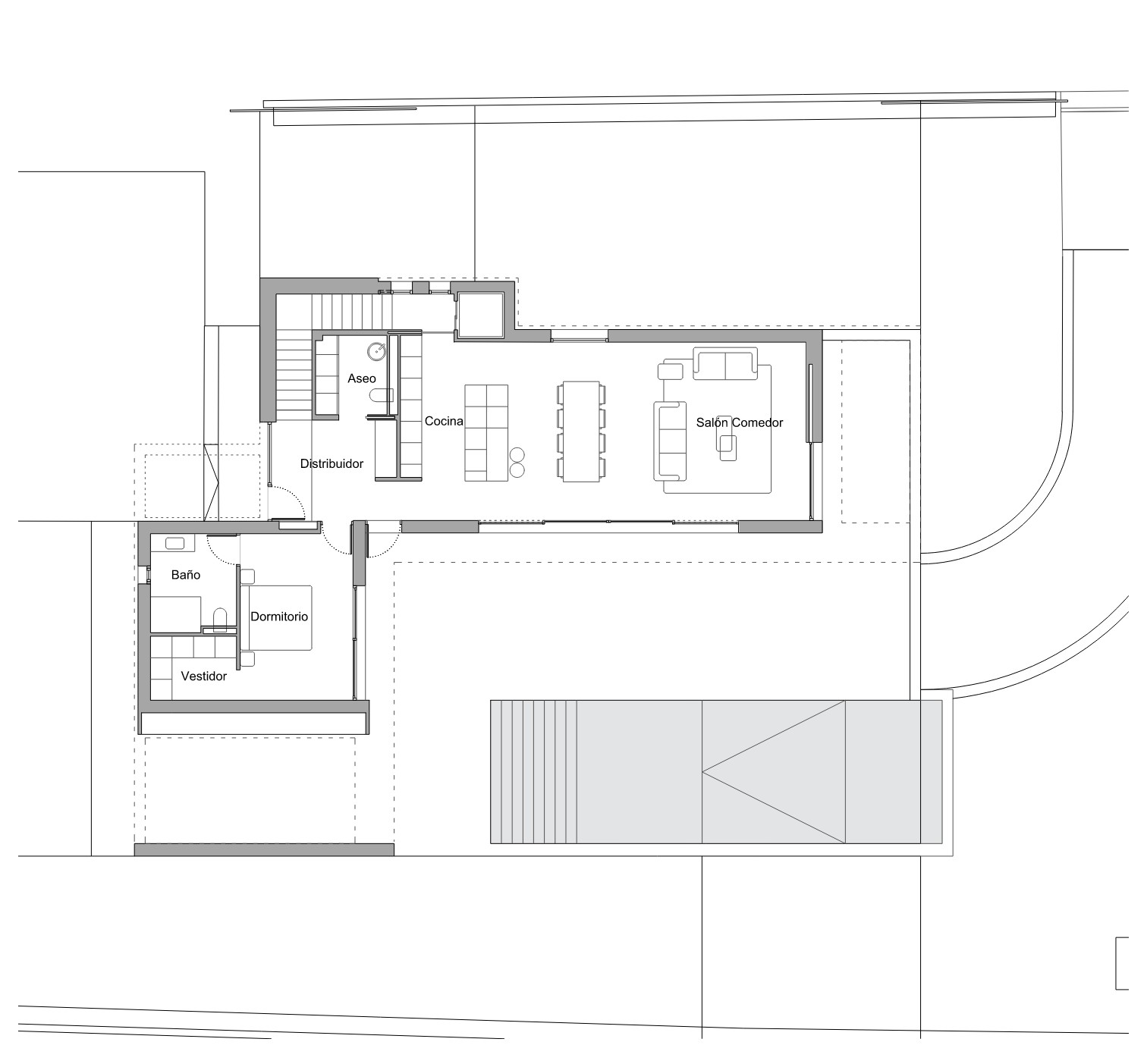
En la planta baja se disponen los espacios de día —cocina, salón y comedor— configurados como un conjunto continuo que se prolonga hacia el exterior. Esta relación fluida permite que la vida diaria se desarrolle entre el interior y el jardín, sin fronteras visuales ni funcionales.
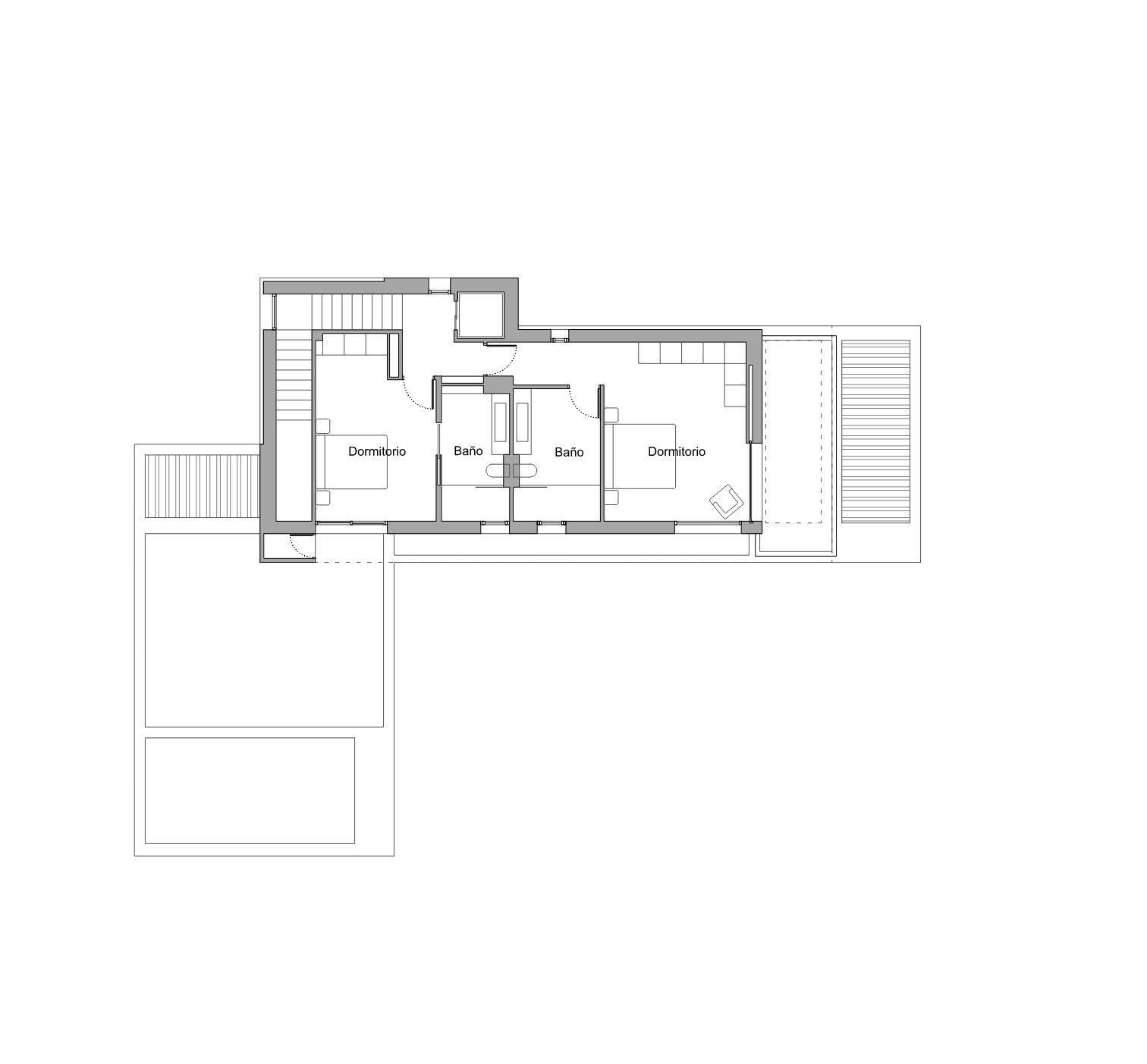
La planta primera alberga las habitaciones, cada una con su propio baño y una terraza privada. Con ello se garantiza que todos los habitantes disfruten de su propio espacio exterior, manteniendo el mismo equilibrio entre privacidad, luz y vistas que define el carácter general de la vivienda.




