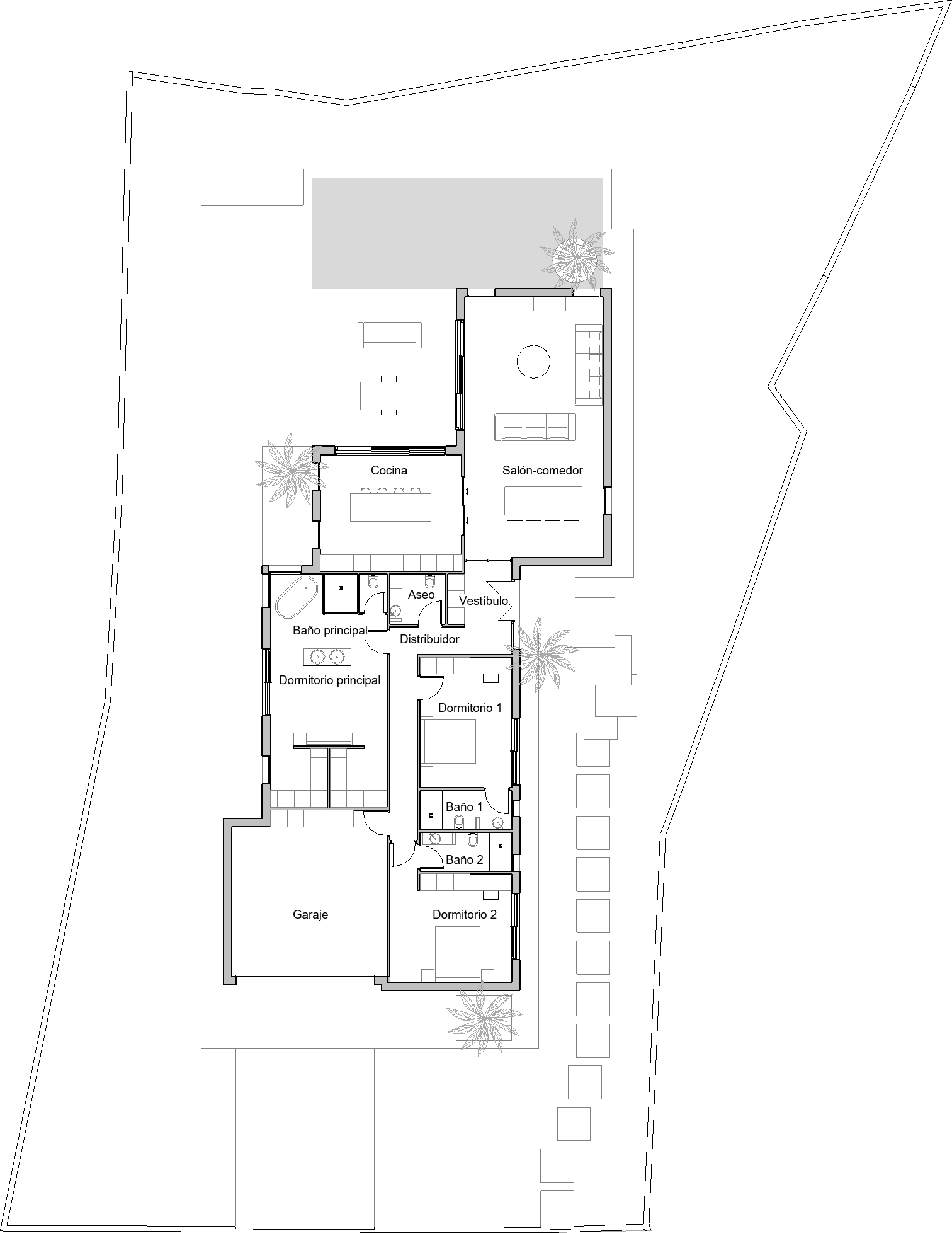
Esta vivienda unifamiliar se desarrolla en una parcela alargada y completamente llana, condicionante que definió desde el inicio un proyecto concebido para resolverse en un único nivel, garantizando la accesibilidad total y una experiencia de uso cómoda y fluida para sus habitantes.
El criterio fundamental de diseño fue orientar la zona de día hacia las espectaculares vistas al skyline de Benidorm y al mar, creando una relación directa entre la vivienda y su entorno privilegiado. Los espacios principales —salón, comedor y cocina— se abren mediante grandes superficies acristaladas, permitiendo que la luz y el paisaje se conviertan en parte esencial de la atmósfera interior.
La organización en planta aprovecha la geometría alargada de la parcela para distribuir de manera eficiente las estancias, generando recorridos intuitivos y una transición natural entre las zonas privadas y los espacios de uso común. La arquitectura se caracteriza por líneas limpias, continuidad visual y una fuerte conexión con el exterior, potenciando una sensación de amplitud y serenidad.
El resultado es una vivienda contemporánea, accesible y plenamente integrada en su entorno, donde el horizonte y el Mediterráneo se convierten en protagonistas del día a día.



