Esta vivienda de lujo Esta vivienda de lujo en Cumbres del Sol, Jávea, se concibe como una auténtica ventana al Mediterráneo, diseñada para capturar al máximo las vistas únicas al mar que ofrece su privilegiado emplazamiento. Desde el primer trazo, el proyecto apuesta por una arquitectura abierta, fluida y permeable, donde cada espacio se orienta y se despliega hacia el horizonte azul.
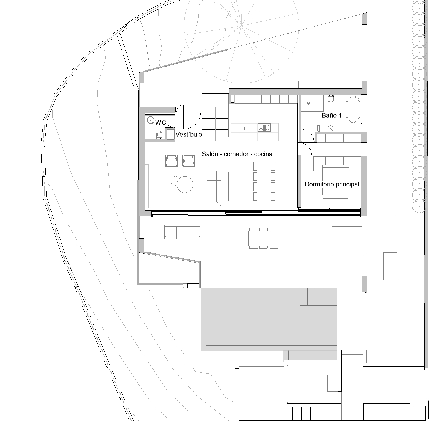
El diseño se ha desarrollado con mucho cariño, cuidando cada detalle para crear un hogar confortable y acogedor. La idea principal era lograr un salón completamente conectado con la terraza, de manera que, al abrir por completo la cristalera frontal, el espacio interior y exterior se fusionen, potenciando la sensación de amplitud y la relación directa con el mar.
La distribución interior se resuelve mediante ambientes conectados que favorecen la continuidad visual y la entrada generosa de luz natural. La combinación de líneas limpias, materiales nobles y una cuidada integración en el paisaje mediterráneo convierte esta vivienda en un refugio contemporáneo donde el mar es el verdadero protagonista.
El resultado es una residencia sofisticada, luminosa y plenamente conectada con su entorno, que eleva la experiencia de habitar a un nivel excepcional.





