Este proyecto de vivienda de lujo destaca por la combinación equilibrada de líneas de forjado muy finas, muros de piedra natural y elementos de madera, creando una arquitectura contemporánea de fuerte identidad mediterránea. La composición se articula mediante espacios permeables, donde interior y exterior se entrelazan con naturalidad.
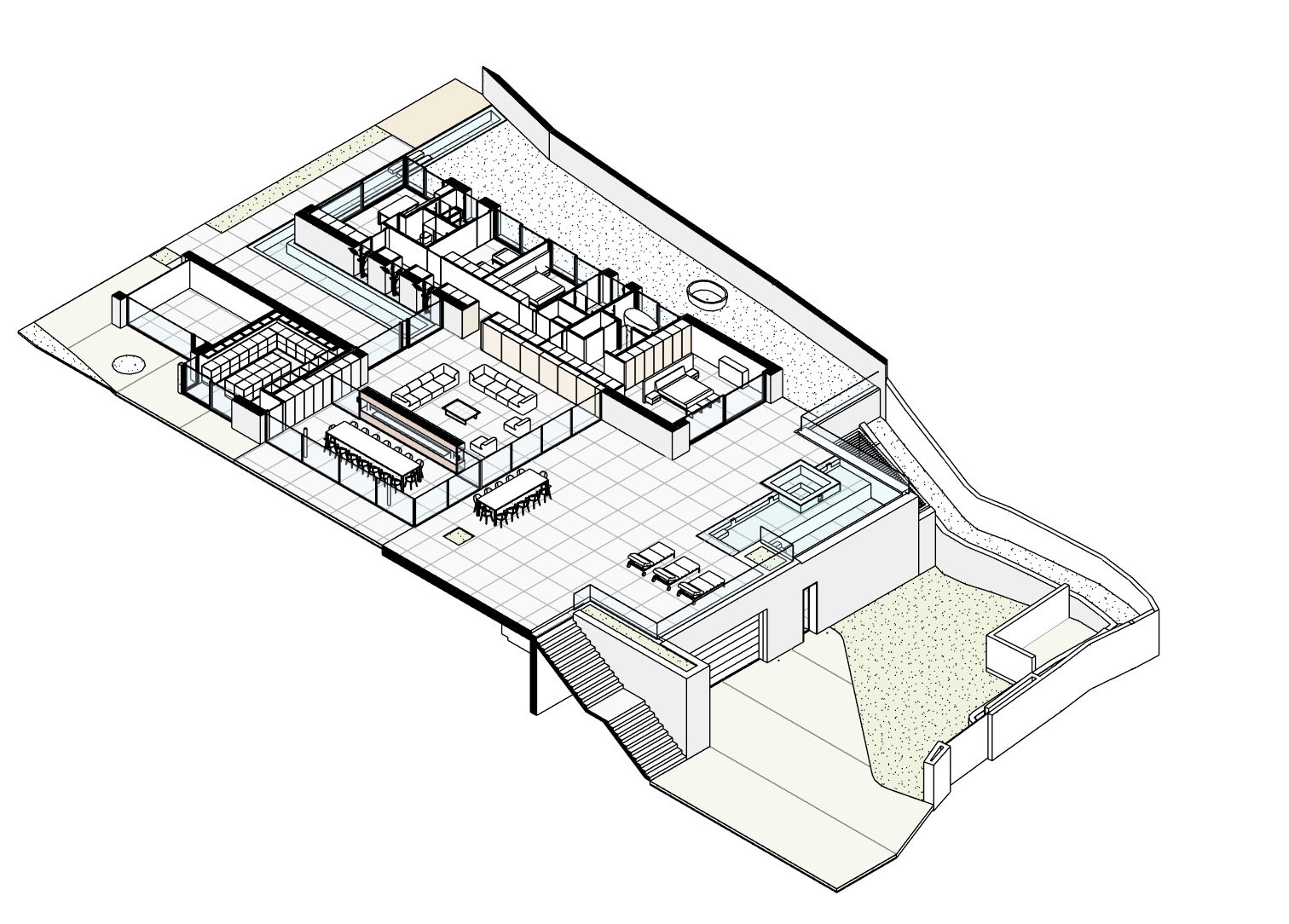
El salón–comedor se concibe como un gran espacio continuo, abierto y fluido, que se conecta simultáneamente con la zona delantera —donde se ubica la piscina— y con el área trasera, por la que se produce el acceso acompañado de un estanque de agua que recibe a los visitantes. Esta doble permeabilidad dota a la vivienda de una relación constante con la luz, el paisaje y la brisa.
La zona de noche se formaliza como un volumen pétreo más introspectivo y protegido, sobre el cual se apoya la esbelta cubierta que define los espacios de día. En contraste con la apertura del resto de la vivienda, este bloque ofrece mayor privacidad y serenidad, y se vuelca hacia un jardín zen, generando un ambiente íntimo y contemplativo.
El resultado es una residencia sofisticada que combina delicadeza estructural, nobleza material y una relación fluida con la naturaleza, construyendo un hogar donde el lujo se expresa a través de la pureza formal, el equilibrio y la calma.





