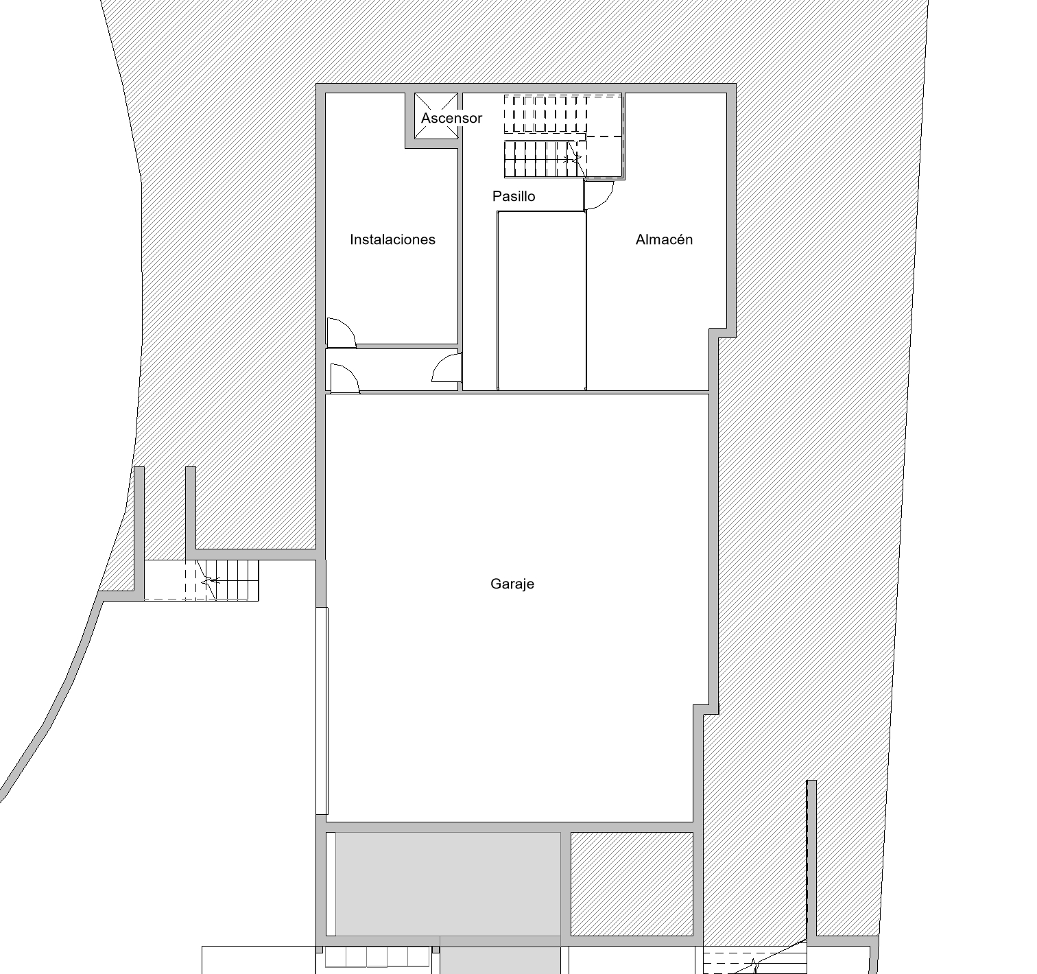
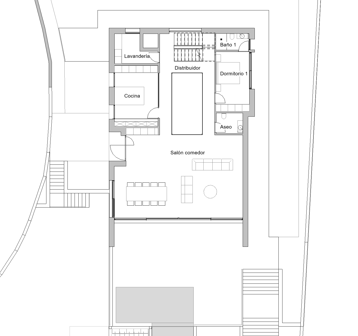
Este proyecto de vivienda de lujo se desarrolla como un refugio contemporáneo de estilo minimalista, donde la pureza de las líneas y la elegancia de los materiales definen cada espacio. La vivienda se articula en torno a un patio central, concebido como el corazón del hogar, que vertebra y conecta todas las estancias, creando recorridos fluidos y una relación constante entre interior y exterior.
El diseño se completa con dos piscinas estratégicamente ubicadas, que amplifican la sensación de amplitud y proporcionan distintos ambientes de disfrute al aire libre. La apertura visual y funcional hacia estos espacios exteriores refuerza la luminosidad, la ventilación natural y la continuidad entre los ambientes.
Cada detalle del proyecto está pensado para maximizar la experiencia mediterránea, combinando minimalismo, confort y estética contemporánea, logrando una vivienda sofisticada donde la arquitectura se integra con el paisaje y el bienestar de quienes la habitan.







