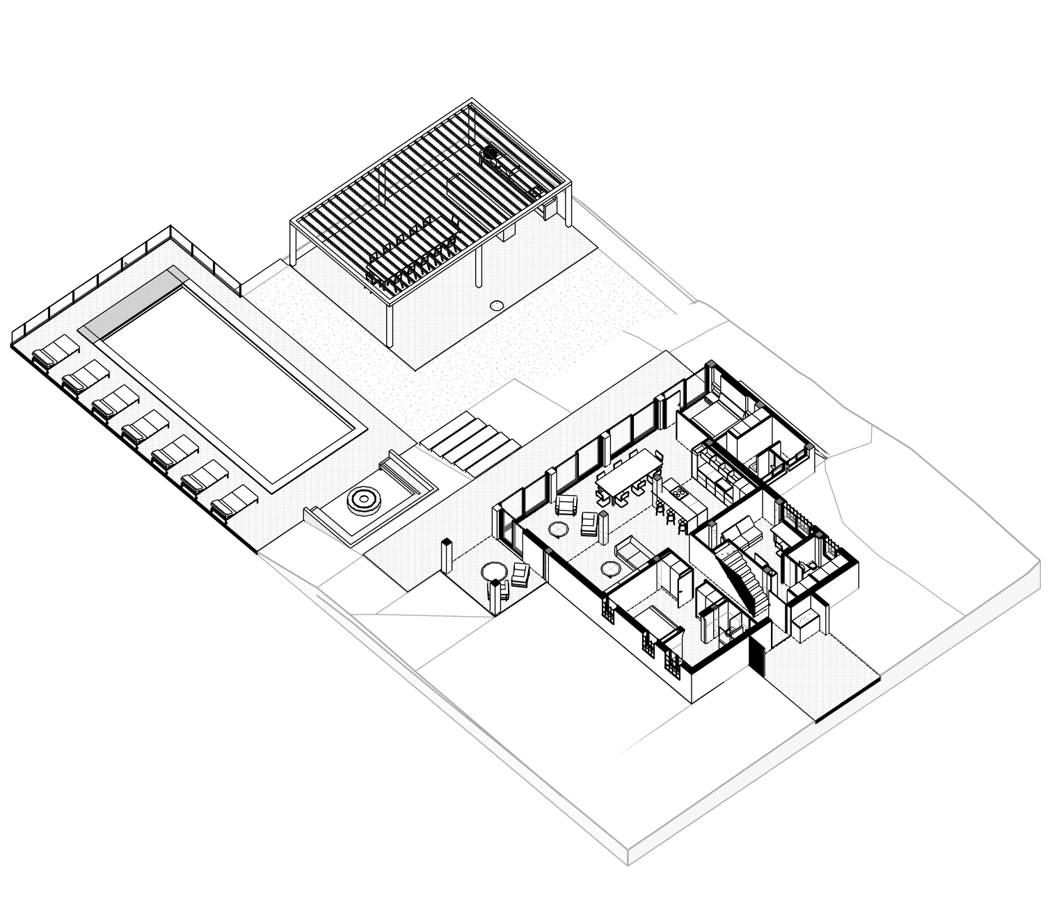
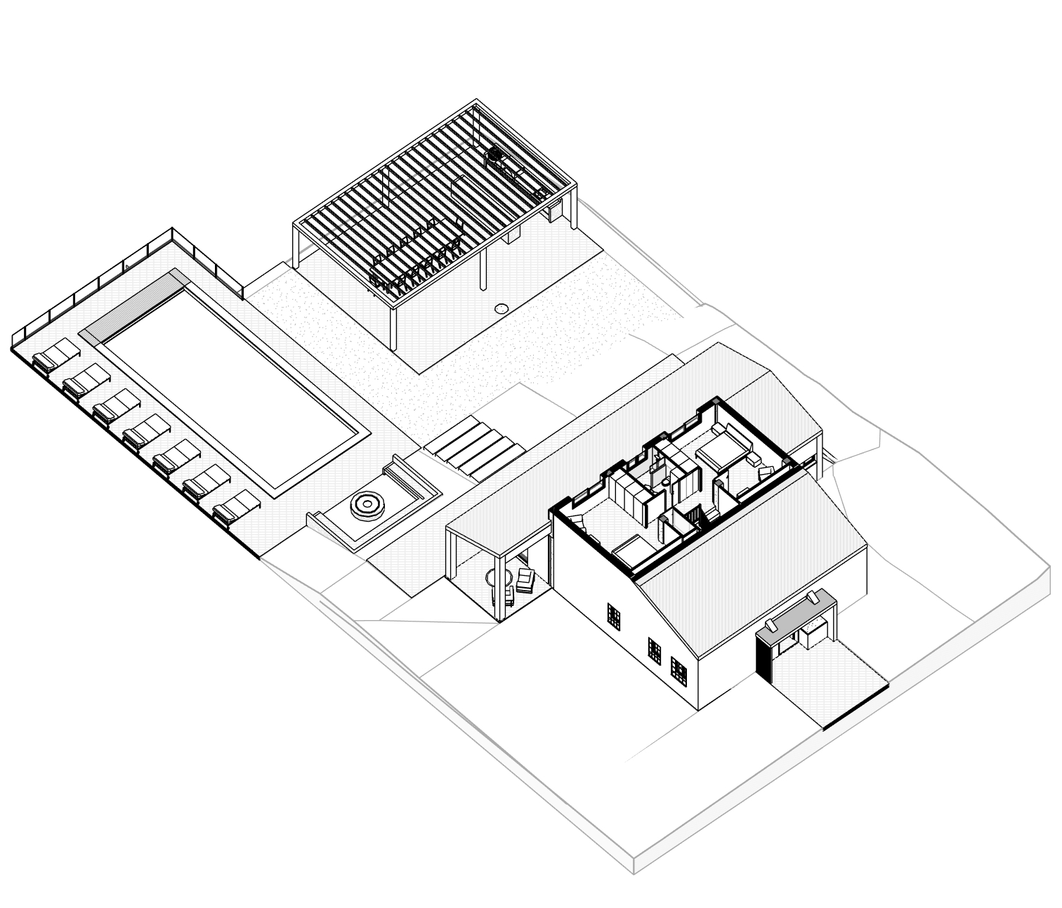
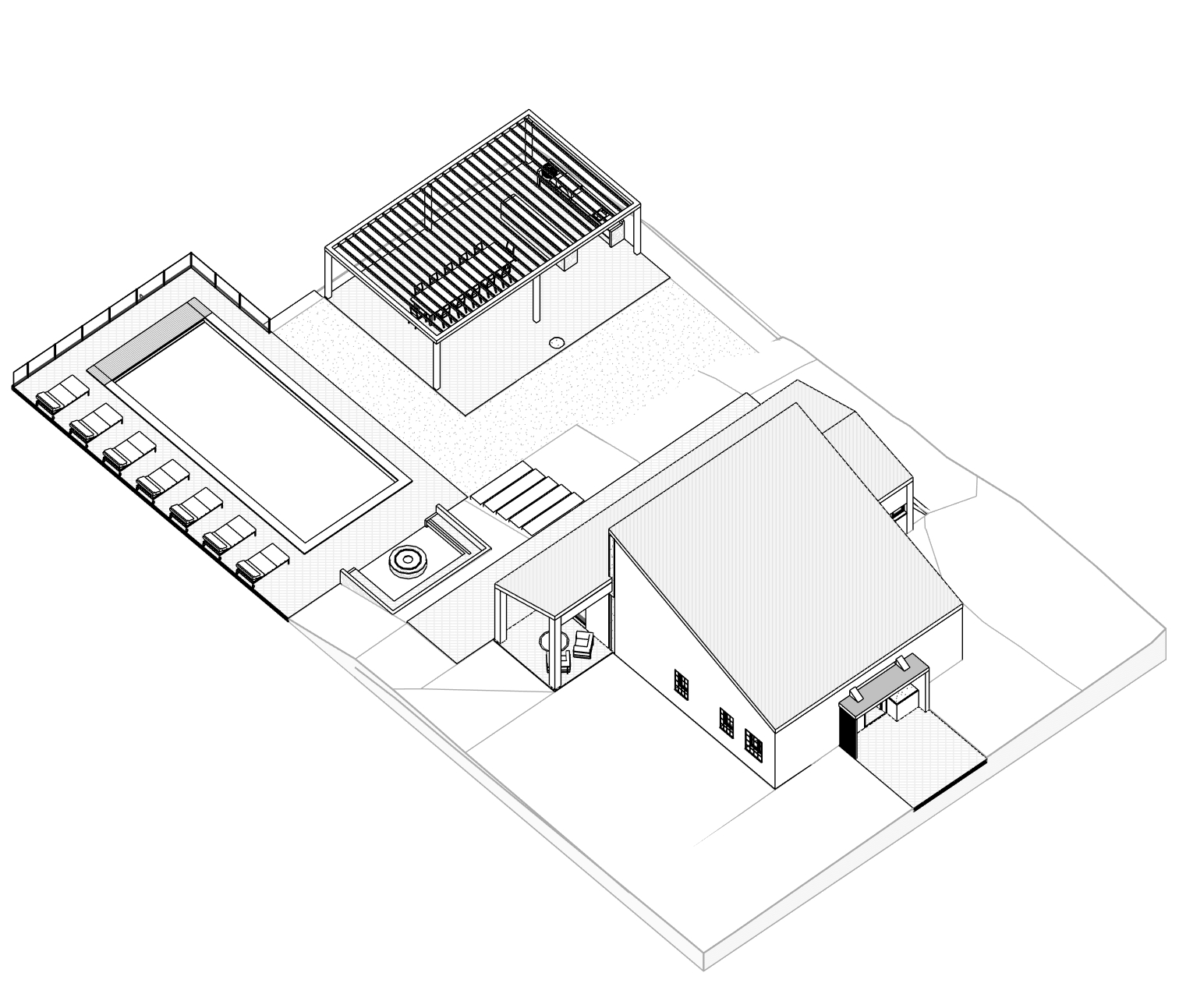
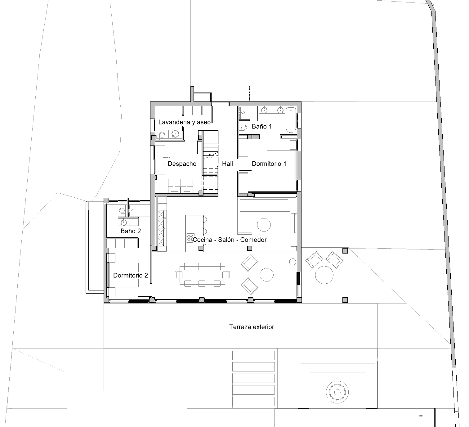
En una de las urbanizaciones más emblemáticas de Altea, este proyecto transforma una vivienda clásica preexistente en un hogar contemporáneo adaptado por completo a las necesidades y estilo de vida del cliente. El objetivo principal fue redefinir la distribución interior para lograr una organización óptima, funcional y fluida, capaz de ofrecer mayor confort y un uso más intuitivo de cada espacio.
El nuevo interiorismo apuesta por una estética minimalista con alma mediterránea, combinando piedra natural, madera y tonos tostados para generar ambientes cálidos, luminosos y equilibrados. Esta fusión crea una atmósfera elegante y serena, donde cada detalle ha sido cuidadosamente seleccionado para aportar coherencia y carácter.
En el exterior, se diseñó un jardín mediterráneo que prolonga la experiencia interior, incorporando una piscina de estilo “Bali”, cuyos colores evocan aguas turquesas y relajantes. Completa la intervención una pérgola para la zona de barbacoa, concebida con los mismos criterios estéticos y materiales, creando un espacio cohesionado que invita al disfrute al aire libre durante todo el año.
El resultado es una vivienda renovada que mantiene la esencia de lo clásico, pero reinterpretada con un lenguaje contemporáneo y mediterráneo, logrando un equilibrio perfecto entre tradición, funcionalidad y diseño.





