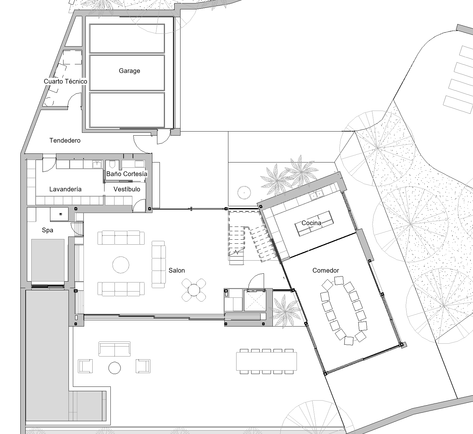
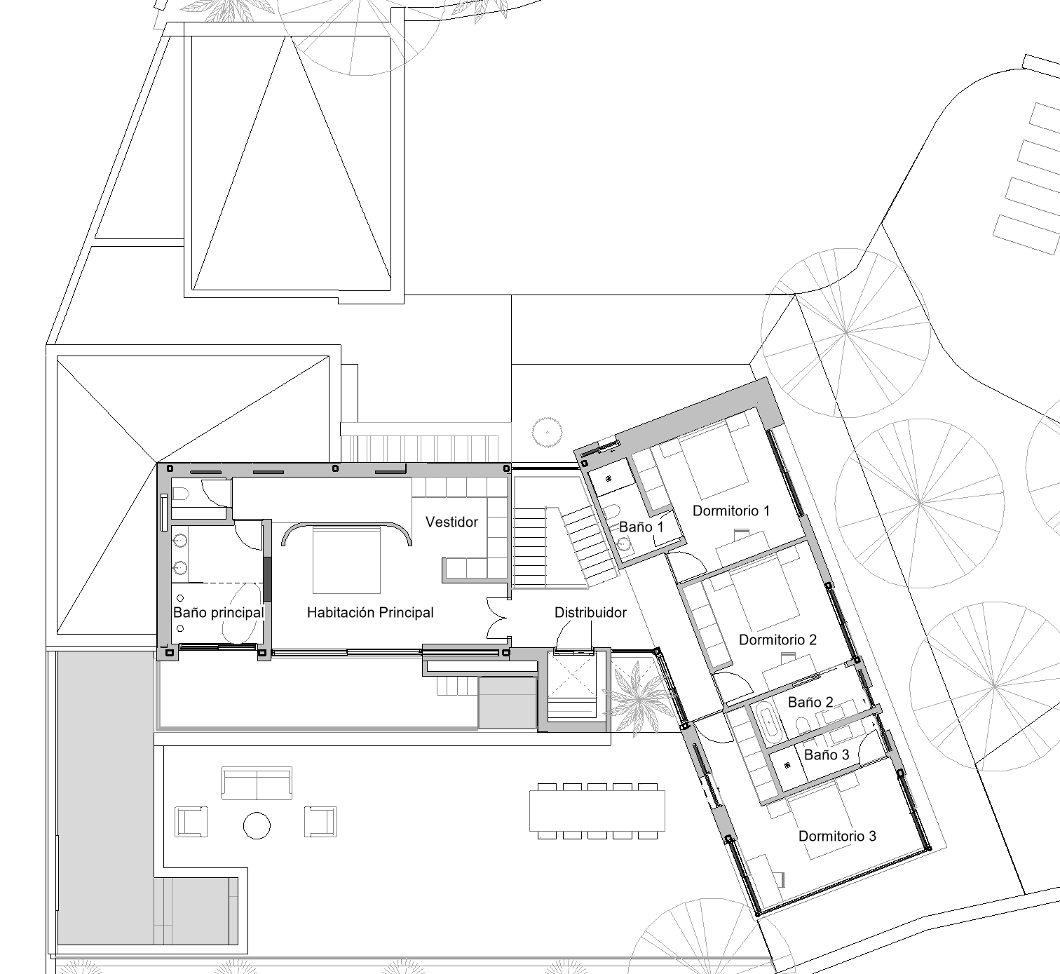
Este proyecto aborda la reforma integral de una vivienda unifamiliar aislada, transformando un edificio existente en un hogar contemporáneo donde la apertura espacial y la conexión con el exterior se convierten en los ejes fundamentales del diseño. La intervención busca liberar la planta original, generando espacios más amplios, fluidos y luminosos, que dialogan de forma natural con las áreas exteriores y potencian la relación con el entorno.
El diseño interior se desarrolla en una gama de tonos tostados y cálidos, acompañados de materiales naturales que evocan la esencia del estilo mediterráneo. Esta paleta aporta serenidad, confort y un carácter atemporal a cada estancia, creando ambientes equilibrados y acogedores.
El resultado es una vivienda renovada que respira amplitud y armonía, donde la arquitectura y el interiorismo trabajan conjuntamente para ofrecer un hogar contemporáneo, cálido y profundamente conectado con su entorno.





